
Hostěradice 233, 671 71 Hostěradice, Česko
Rodinný dům 3+1 se zahradou a "wellness" v Hostěradicích.
Dům
3+1
Zahrada
Venkovní posezení
Sauna
Bazén
Garáž
Nabízíme k prodeji samostatně stojící rodinný dům v klidné části obce Hostěradice. Dům je ve velmi dobrém udržovaném stavu a nabízí velkorysé zázemí pro rodinné bydlení i aktivní odpočinek.
Základní informace o pozemku:
Celková plocha parcely: 1 381 m²
Zastavěná plocha a nádvoří: 484 m²
Zahrada: 897 m²
Typ stavby: Zděný dům (kámen, cihla, tvárnice) se sedlovou střechou (pálená taška)
Podsklepení: Dům je částečně podsklepený
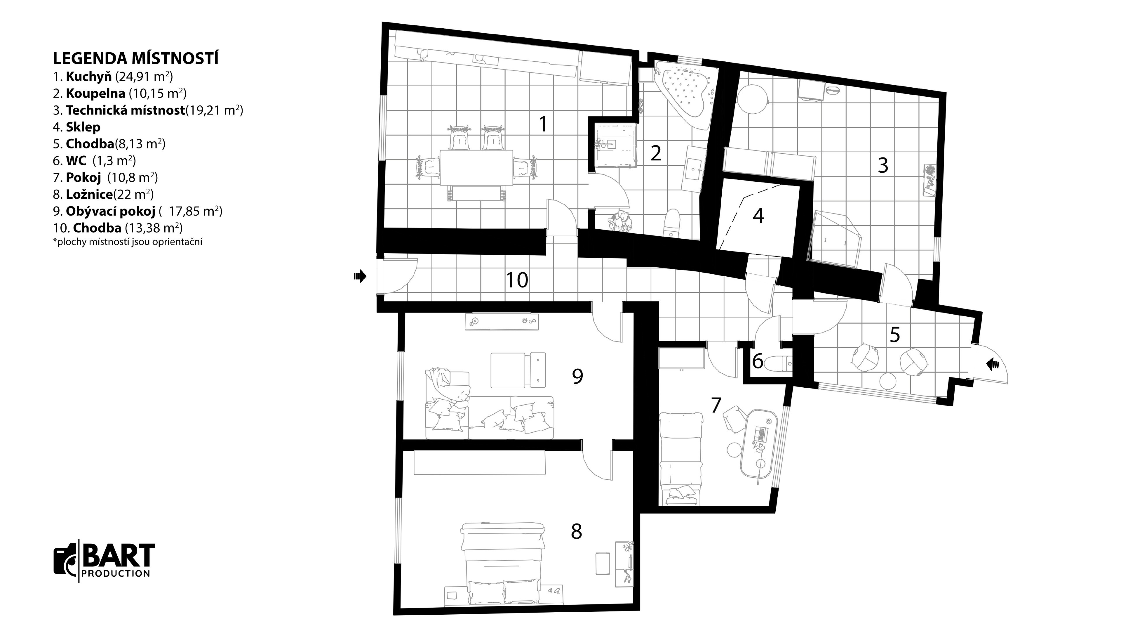
Dispozice a interiér (cca 138 m²)
Dům nabízí praktické rozložení místností s důrazem na prostor a pohodlí:
Kuchyně s jídelnou: 24,91 m²
Ložnice: 22 m²
Obývací pokoj: 17,85 m²
Pokoj: 10,8 m²
Prostorná koupelna: 10,15 m² s vanou i sprchovým koutem
Wellness: Přímo v domě se nachází infrasauna
Zázemí: Technická místnost (19,21 m²), chodby, spíž a samostatné WC
Zahrada je kompletně vybavená pro relaxaci i zahradničení:
Bazén: Nadzemní bazén s dřevěnou opalovací terasou
Posezení: Zastřešená dřevěná pergola pro venkovní stolování
Zahrada: Okrasné jezírko, skleník, vzrostlé ovocné stromy a travnaté plochy
Garáž: Součástí objektu je prostorná garáž s vjezdem z ulice
Technické údaje:
Inženýrské sítě: Elektřina (240/400 V), obecní vodovod, hloubková kanalizace
Vytápění: Ústřední topení s kotlem na tuhá paliva
Plyn: Nemovitost není napojena na plyn
Ohřev vody: Elektrický bojler
Okna: Plastová
Majitel si vyhrazuje právo vybrat nájemce na základě jim zvolených kritérií. Veškeré zveřejněné údaje obsažené v tomto inzerátu mají pouze informativní charakter a nejsou nabídkou ve smyslu § 1731 nebo § 1732 občanského zákoníku, ani se nejedná o veřejný příslib dle § 1733 občanského zákoníku.
Cena nemovitosti
5 990 000,00 Kč
Máte zájem? Ozvěte se mi

Petr Bartoš
+420 604 789 756
petr.bartos@properia.cz
Virtuální prohlídka
Půdorys
Soubory ke stažení
Videoprohlídka
Lokalita
Klidné bydlení
Obec Hostěradice se nachází v malebném regionu Znojemska a představuje ideální místo pro ty, kteří hledají klid venkova, ale nechtějí se vzdát dosahu větších měst. Dům je situován v tiché, obytné části obce, která zaručuje soukromí a nerušený odpočinek.
Vše po ruce: Hostěradice jsou vybavenou obcí, kde najdete základní občanskou vybavenost včetně mateřské a základní školy, pošty, obchodů s potravinami i restaurací.
Doprava a dostupnost: Obec má strategickou polohu na trase mezi Znojmem a Brnem.
Znojmo: cca 20 minut jízdy autem.
Brno: cca 40 minut jízdy autem (pohodlné spojení na pohořelickou dálnici).
V obci funguje pravidelná autobusová doprava v rámci IDS JMK.
Volný čas a příroda: Okolí obce je protkáno cyklostezkami a turistickými trasami, které vedou mezi vinohrady a meruňkovými sady, jimiž je tato oblast proslulá. Milovníci wellness a koupání ocení nejen bazén přímo na zahradě, ale i blízkost termálních lázní (např. Laa an der Thaya) nebo vodní nádrže Nové Mlýny.
Bydlení v Hostěradicích kombinuje tradici jihomoravské vesnice s moderním životním stylem, což z této lokality dělá perfektní místo pro rodinný život i aktivní penzi.






















