
Opavská 33/6, 639 00 Brno-střed-Štýřice
PRODEJ BYTU 2+1 S VLASTNÍM PARKOVÁNÍM
2+1
Parkovací místo
Bytový dům
Sklep
Koupelna
Venkovní žaluzie
Kamerový systém
MHD
Hledáte bydlení v širším centru Brna, kde nebudete muset řešit parkování a vše podstatné budete mít v docházkové vzdálenosti? Nabízím vám zrenovovaný byt na ulici Opavská.
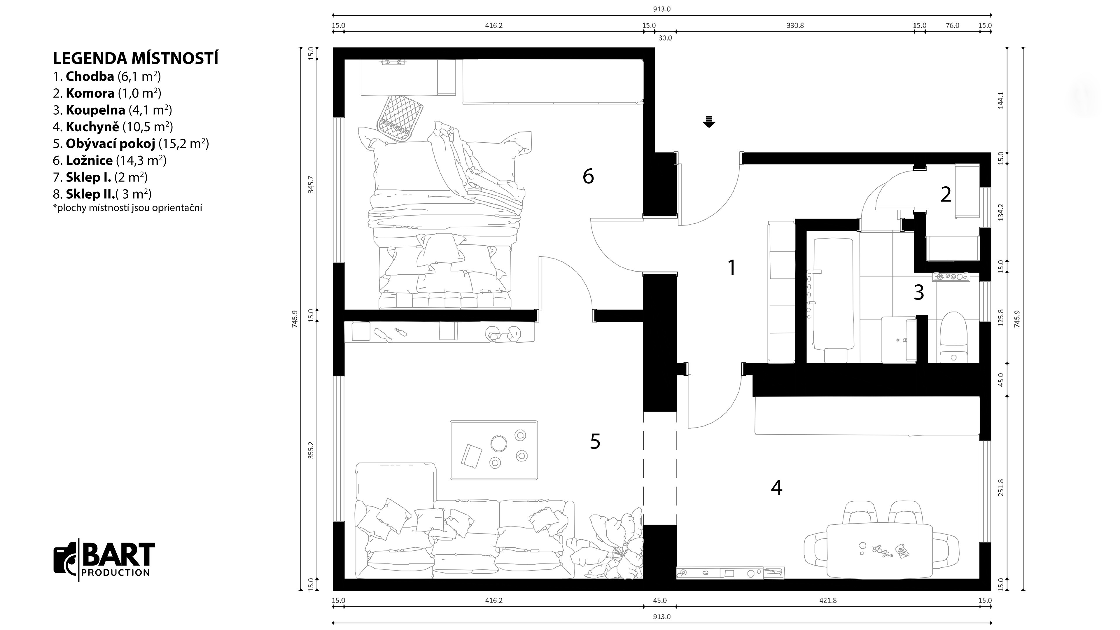
Tento cihlový byt v osobním vlastnictví o dispozici 2+1 a rozloze 54 m² se nachází v 1. nadzemním podlaží revitalizovaného domu, což znamená maximální pohodlí a snadný přístup. Budova má energetický štítek třídy C a je vybavena kamerovým systémem, který dohlíží na bezpečnost obyvatel i společných prostor.
Parkování za závorou a zázemí pro aktivní život
Největší devizou tohoto bytu je vlastní parkovací stání přímo u domu, které je chráněno závorou. V této části Štýřic, kde jsou zavedeny modré zóny, jde o zásadní praktickou výhodu, která vám ušetří čas i starosti při každém návratu domů.
K bytu náleží nadstandardní úložné prostory v podobě dvou sklepů o velikosti 2 m² a 3 m². Pokud jezdíte na kole, oceníte také společnou kolárnu přímo v domě.
Zrenovovaný interiér a vlastní kotel
Byt prošel celkovou obnovou a je připraven k okamžitému nastěhování. Interiér je řešen moderně a funkčně, přičemž velkým benefitem je vlastní kotel pro vytápění a ohřev vody. Díky tomu nejste závislí na centrálním vytápění a můžete si regulovat teplotu i náklady na energie přesně podle svých potřeb.
Strategická poloha s výbornou dostupností
Ulice Opavská nabízí ideální rovnováhu mezi blízkostí centra a klidnějším prostředím.
Vše pěšky: Na Mendlovo náměstí nebo k hlavnímu nádraží dojdete za několik minut.
Potenciál pro pronájem: V těsné blízkosti se nachází Spielberk Office Centre na ulici Holandská, což z bytu dělá mimořádně atraktivní cíl pro firemní zaměstnance a expaty.
Klidná zóna v centru: Přestože jste v docházkové vzdálenosti od tepu města, samotná ulice si zachovává charakter klidného místa pro život.
Tento byt je ideální volbou jak pro pohodlné vlastní bydlení, tak jako bezpečná investice v lokalitě s trvale vysokým zájmem o pronájmy. Přijďte se o jeho kvalitách přesvědčit osobně.
Cena nemovitosti
6 990 000,00 Kč
Máte zájem? Ozvěte se mi

Petr Bartoš
+420 604 789 756
petr.bartos@properia.cz
Virtuální prohlídka
Půdorys
Soubory ke stažení
Videoprohlídka
Lokalita
Klidný přístav v centru Brna
Štýřice patří mezi vyhledávané brněnské lokality, protože dokonale spojují výhody městského života s klidným zázemím. Strategická poloha ulice Opavská v širším centru vám zaručuje, že na Mendlovo náměstí i k nádraží dojdete pohodlně pěšky. Velkou výhodou je také bezprostřední sousedství s prestižní business zónou Spielberk Office Centre na ulici Holandská. Díky tomu máte skvělou občanskou vybavenost doslova za rohem a zároveň se jedná o vysoce atraktivní lokalitu pro případné nájemníky z řad IT specialistů a expatů. Je to zkrátka místo, které dlouhodobě funguje jako bezpečný přístav pro investici, a přitom si zachovává příjemnou atmosféru pro váš každodenní život.

















